Доброго времени суток. Наконец-то наступила весна и начали выходить новые продукты Autodesk-a. Сегодня я хочу написать о новшествах которые появились в Revit Structure 2015. Начнем.
1.Расчеты – добавилась возможность отображения(скрытия) локальных осей элементов.
1.Расчеты – добавилась возможность отображения(скрытия) локальных осей элементов.
а также значительно улучшена работа с аналитическими связями.
2. Совместная работа - Связь с IFC файлами.
Связывание через IFC файлы позволяет расширить возможности совместной работы с BIM-моделями созданными в сторонних программах, а также наладить автоматическое обновление модели при изменениях.
3. Работа с элементами и семействами
3.1. Прикрепленные объекты теперь удаляются только после отсоединения
3.2. Возможность оставлять комментарии к параметрам проекта.
3.3. Удлинение и обрезка нескольких элементов за раз.
3.4. Возможность в ручную устанавливать порядок отображения свойств для типов семейств.
3.5. В панели свойства добавилась новая секция с данными для структурного анализа (сугубо справочная инфа, Robot-ом игнорируется).
3.6." Ручки формы" для балок - теперь при изменении размера балки при помощи "ручек" край балки привязывается к грани смежного элемента.
3.7. На ленту вынесли команды для управления смещения балки по Z и по Y.
3.8. На ленту вынесли команды по управлению привязкой края балки к смежному элементу (наконец).
4. Армирование
4.1. Появилась возможность армировать отдельными арматурными сетками.
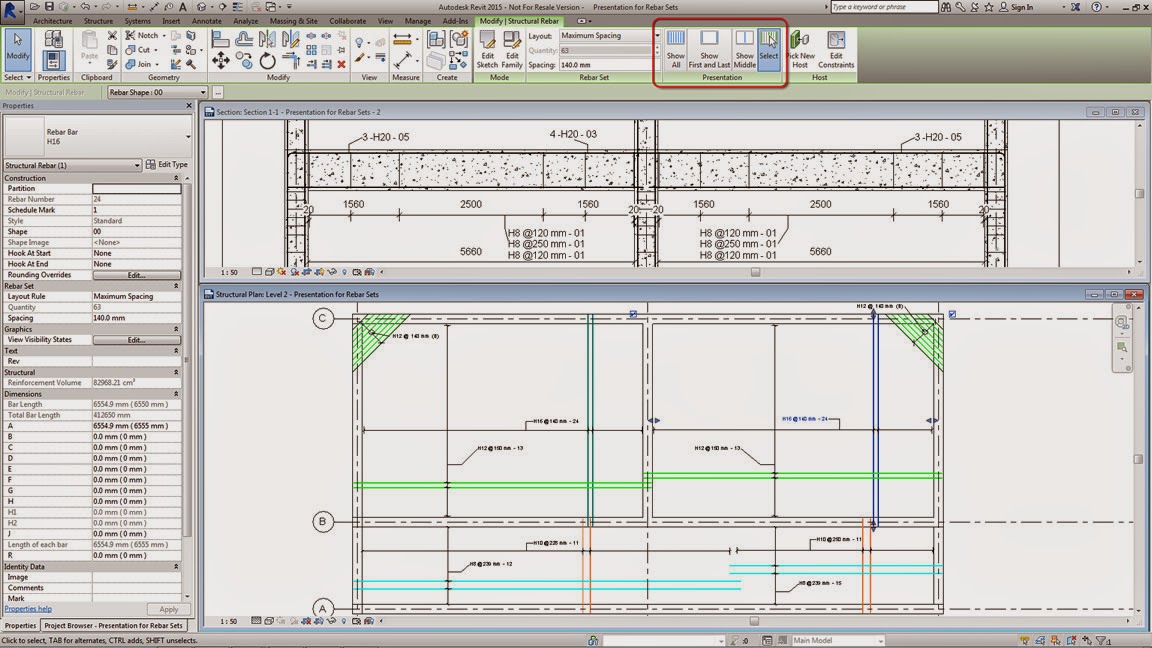
4.2. Появилась возможность переключения вида на чертежах массивов арматуры: все стержни, только крайние стержни, средние стержни, выборочно.
4.3. Автоматическая нумерация стержней арматуры. После применения данной функции из выбранной арматуры создаются "наборы" стержней внутри которых уже и происходит нумерация. Наборы можно формировать по выбранным критериям (фильтрам). Неплохая альтернатива нумерации стержней арматуры через спецификацию количества.
4.4. Появилась возможность ставить мультивыноски для арматуры.
5. Документирование
5.1. Возможность переключения видимости скрытых линий на видах и разрезах.
5.2. Инструмент "Облачко" (Внесения изменений) - Добавлена возможность удаления изменений из списка. Создание облака используя различные эскизы и изменение размеров арок.
5.3. Марки элементов и материалов- При перемещении марки сохраняют положение горизонтальной линии. Марка теперь себя ведет как текст с выноской.
5.4. Фильтрация спецификаций и ведомостей теперь может содержать до 8 фильтров.
5.5. Появилась возможность помещать изображения в спецификации.
Вот пожалуй и все значительные изменения которые появились в 2015 версии как и всегда их меньше чем хотелось но все они очень востребованные в повседневной работе. В ближайших статьях я детальней рассмотрю все новшества касающиеся армирования (очень наболевшая тема).













Комментариев нет:
Отправить комментарий